Menü

Bekanntmachung

des Aufstellungsbeschlusses gemäß § 2 Abs. 1 S. 2 BauGB, sowie Bekanntmachung der frühzeitigen Beteiligung der Öffentlichkeit gemäß § 3 Abs. 1 BauGB für den vorhabenbezogenen Bebauungsplan mit integriertem Grünordnungsplan „Holzbetrieb Stuber“ in Tettenwang

Der Marktrat hat in der Sitzung vom 18.11.2025 gemäß § 2 Abs. 1 BauGB die Aufstellung des Vorhabenbezogenen Bebauungsplanes mit integriertem Grünordnungsplan „Holzbetrieb Stuber“ in Tettenwang sowie die Billigung des Vorentwurfs beschlossen. 

Geltungsbereich

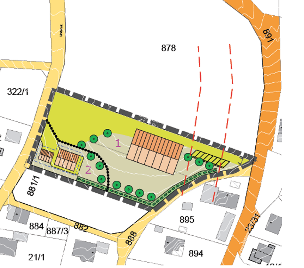
Flurnummern des Geltungsbereichs Bebauungsplan: 880, 881 Teilfläche 

Allgemeine Ziele und Zwecke der Planung

Ziel der Bauleitplanung ist es, die Erweiterung des Holzbaubetriebs Stuber an einem neuen Standort im Ortsteil Tettenwang des Marktes Altmannstein zu ermöglichen. Der Betrieb trägt als regional verankerter Handwerksbetrieb wesentlich zur wirtschaftlichen Entwicklung und zur Stärkung der örtlichen Handwerksstruktur bei.

Der Vorhabenträger hat hierzu einen Antrag auf Aufstellung eines vorhabenbezogenen Bebauungs- und Grünordnungsplans beim Markt Altmannstein gestellt, um die planungsrechtlichen Voraussetzungen für die Umsetzung des Vorhabens zu schaffen.

Der bisherige Betriebsstandort in Riedenburg bietet aufgrund seiner räumlichen Begrenzungen keine ausreichenden Erweiterungsmöglichkeiten mehr. Die bestehenden Flächen sind vollständig ausgelastet, sodass die Bearbeitung zusätzlicher Aufträge zunehmend eingeschränkt ist und die betriebliche Entwicklung stagniert. 

Mit dem neuen Standort sollen die betrieblichen Abläufe optimiert und die Kapazitäten erweitert werden. Die geplante Abbund- und Lagerhalle ermöglicht es dem Unternehmen, der steigenden Auftragsnachfrage wieder gerecht zu werden und die Produktionsprozesse effizienter zu gestalten.

Für die Gemeinde stellt die Ansiedlung des jungen, wachsenden Unternehmens eine bedeutsame Chance zur Stärkung der lokalen Wirtschaft und Beschäftigung dar. Gleichzeitig profitieren die Einwohnerinnen und Einwohner von der Sicherung eines leistungsfähigen, regionalen Handwerksbetriebs, der zur Versorgung und Dienstleistung im Gemeindegebiet beiträgt.

Der Geltungsbereich wird auf FNP-Ebene als gewerbliche Baufläche gemäß §1 Abs. 1 Nr. 3 BauNVO zur Errichtung des Holzbaubetriebes ausgewiesen. 

Der Vorentwurf des vorhabenbezogenen Bebauungsplan und des Vorhaben- und Erschließungsplanes, sowie die Begründung liegen zur frühzeitigen Beteiligung der Öffentlichkeit gem. § 3 Abs. 1 BauGB in der Zeit

 

vom 01.12.2025 bis einschließlich 16.01.2025

 

im Rathaus des Marktes Altmannstein, Marktplatz 4, 93336 Altmannstein (Marktbauamt, II. Stock, Zi.-Nr. 2.04) während der üblichen Dienstzeiten öffentlich aus. 

Stellungnahmen sollen während dieser Frist elektronisch an bauamt@altmannstein.de und bei Bedarf in Textform im Rathaus oder während der Dienststunden zur Niederschrift abgegeben werden.

Nicht fristgerecht abgegebene Stellungnahmen können bei der Beschlussfassung über den Bebauungsplan/ die Änderung des Flächennutzungsplanes unberücksichtigt bleiben, wenn die Stadt den Inhalt nicht kannte und nicht hätte kennen müssen und deren Inhalt für die Rechtmäßigkeit der Flächennutzungsplanänderung nicht von Bedeutung ist. 

Parallel zur öffentlichen Auslegung werden die Stellungnahmen der Behörden und sonstigen Träger öffentlicher Belange, deren Aufgabenbereich durch die Änderung berührt werden kann, eingeholt (§ 4 Abs. 1 BauGB).

Datenschutz:          

Die Verarbeitung personenbezogener Daten erfolgt auf der Grundlage der Art. 6 Abs. 1 Buchstabe e (DSGVO) i.V. mit § 3 BauGB und dem BayDSG. Sofern Sie Ihre Stellungnahme ohne Absenderangaben abgeben, erhalten Sie keine Mitteilung über das Ergebnis der Prüfung. Weitere Informationen entnehmen Sie bitte dem Formblatt „Datenschutzrechtliche Informationspflichten im Bauleitplanverfahren“ das ebenfalls öffentlich ausliegt.